PROJEKTY
Rodinný dům Bohdalovice u Větřní
.avif)
O PROJEKTU
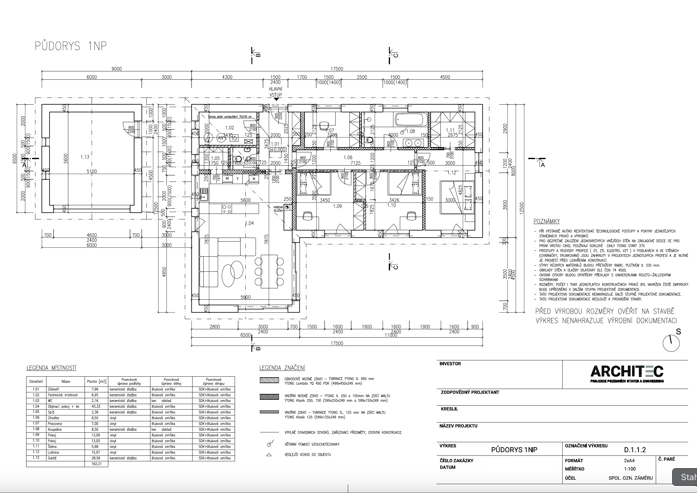
Dispozice je členěna na klidovou a obytnou část s přímým vstupem na terasu z obývacího pokoje. Součástí hlavního objemu stavby je garáž, která je funkčně propojena přístřeškem, který zároveň slouží jako venkovní kryté parkovací stání. Stavba je navržena s ohledem na přirozené oslunění, orientaci na světové strany a přehledné provozní vztahy. Objekt je umístěn na parcele v nové rezidenční zástavbě obce Bohdalovice u Větřní. Dům je vytápěn kombinací dvou zdrojů – hlavním zdrojem je tepelné čerpadlo vzduch/voda, které je doplněné o bivalentní zdroj v podobě krbové vložky, která zároveň tvoří estetický prvek v obytné části objektu.
TYP:
Bydlení
SLUŽBY:
Stavební povolení
LOKALITA:
Bohdalovice
Datum:
2025
Projekty
Další projekty
Kontakt
Spojte se s námi.
Kontaktujte nás pro nezávaznou konzultaci vašeho projektu zdarma. Vyslechneme vaše požadavky a nabídneme optimální řešení na míru.







.webp)



.avif)

