PROJEKTY
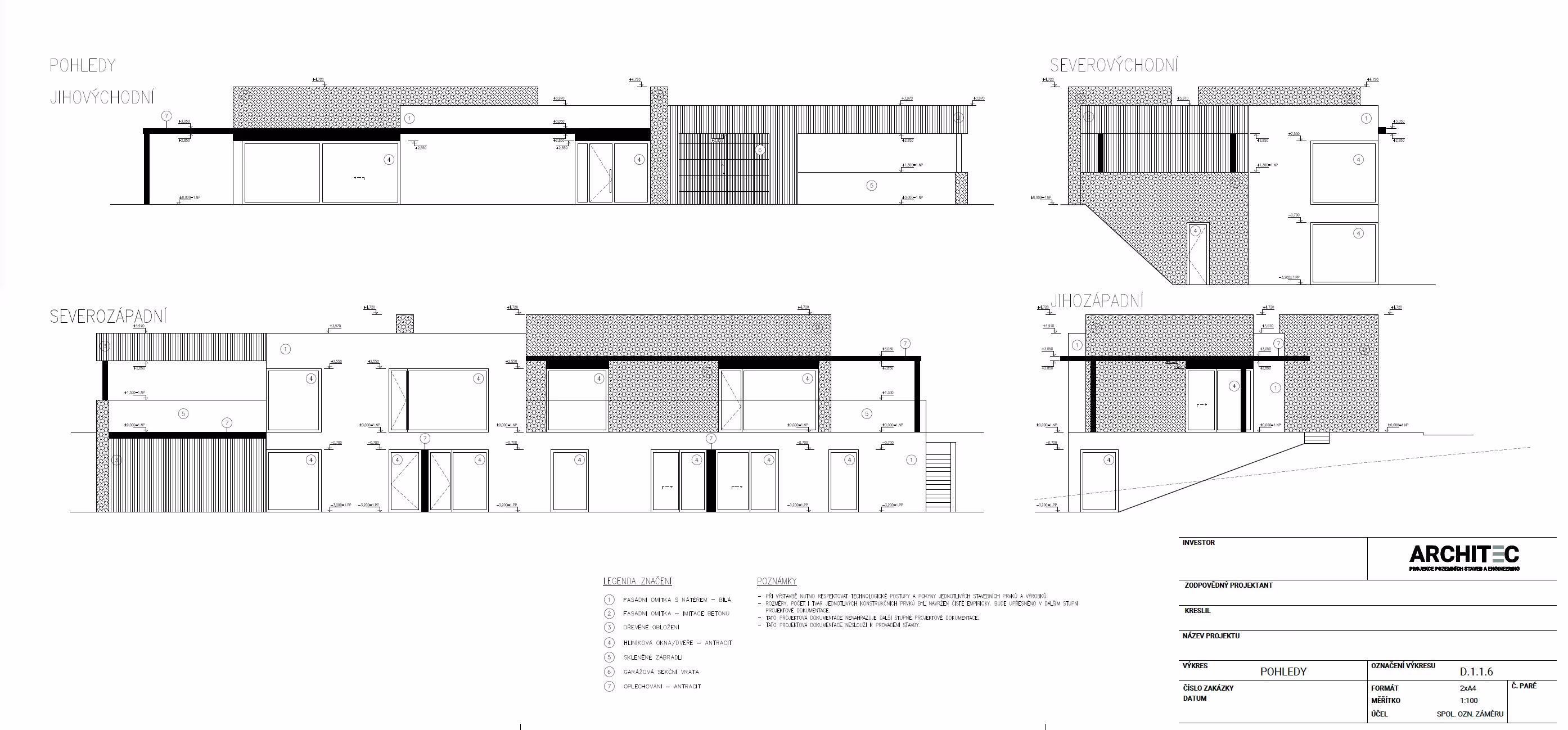
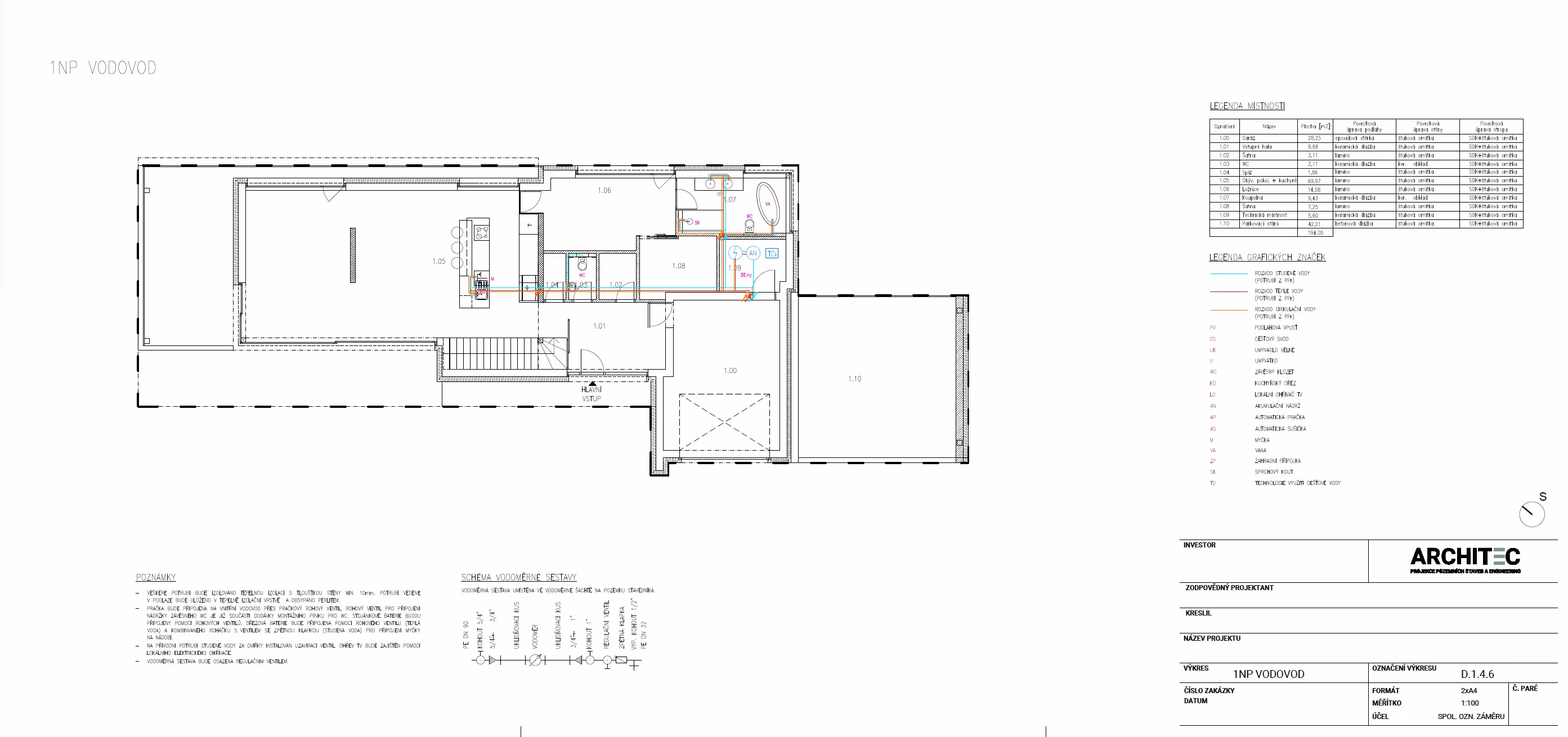
Rodinný dům Hluboká nad Vltavou
Moderní dvoupodlažní rodinný dům situovaný v prestižní lokalitě Hluboké nad Vltavou.

O PROJEKTU
Objekt je určen pro komfortní bydlení pětičlenné rodiny a je navržen s důrazem na čisté linie, maximální využití prostoru, energetickou efektivitu a propojení interiéru s exteriérem.
TYP:
Bydlení
SLUŽBY:
Stavební povolení
LOKALITA:
Hluboká nad Vltavou
Datum:
2025
Projekty
Další projekty
Kontakt
Spojte se s námi.
Kontaktujte nás pro nezávaznou konzultaci vašeho projektu zdarma. Vyslechneme vaše požadavky a nabídneme optimální řešení na míru.







.webp)


.avif)
.avif)

