PROJEKTY
Skladovací hala Ledenice
.avif)
O PROJEKTU
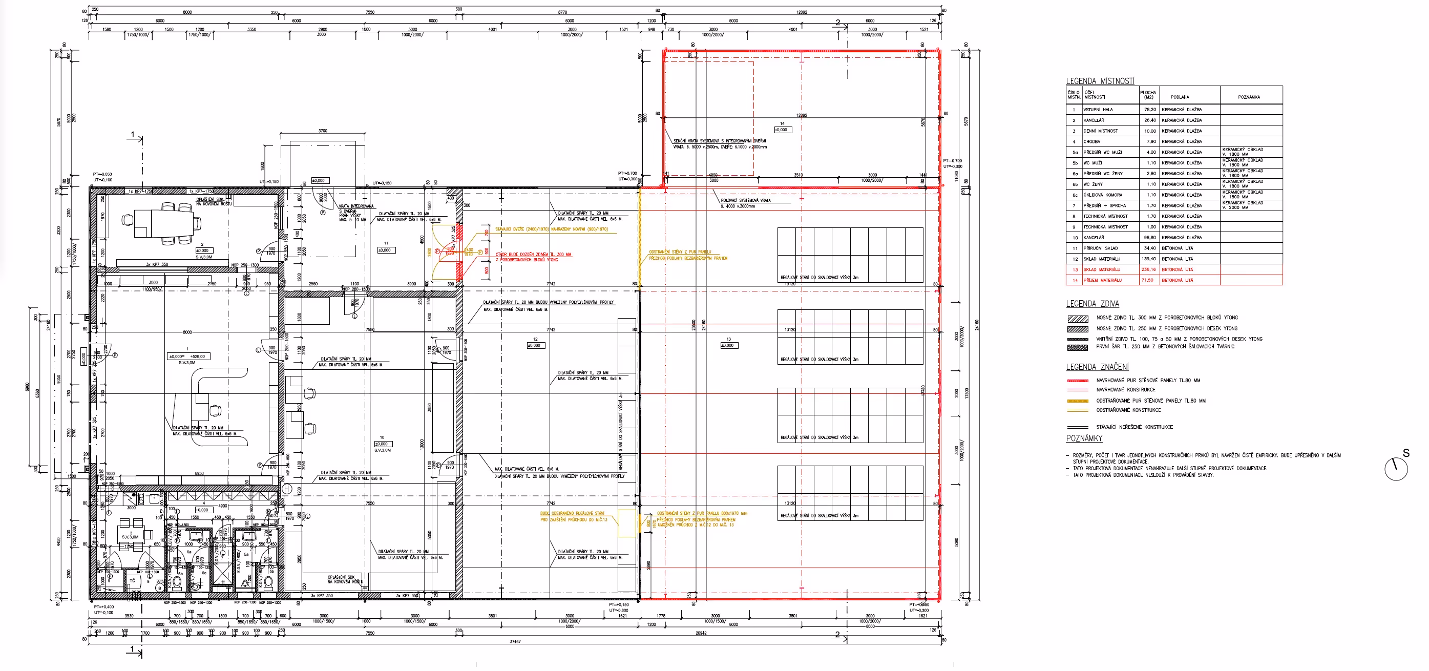
Projekt se zabývá přístavbou ocelové skladovací haly v obci Ledenice, jejímž cílem bylo rozšíření stávajících kapacit a úprava objektu pro nový způsob užívání. Přístavba umožnila navýšit skladovací prostory a zároveň přizpůsobit celý areál novým provozním požadavkům investora. Konstrukční řešení vychází z lehké ocelové rámové soustavy s opláštěním z panelových systémů, které umožňují rychlou montáž i budoucí flexibilní úpravy.
TYP:
Komerční
SLUŽBY:
Stavební povolení
LOKALITA:
Ledenice
Datum:
2024
Projekty
Další projekty
Kontakt
Spojte se s námi.
Kontaktujte nás pro nezávaznou konzultaci vašeho projektu zdarma. Vyslechneme vaše požadavky a nabídneme optimální řešení na míru.







.webp)



.avif)

