PROJEKTY
Pasport rodinného domu v Besednici
Pasport rodinného domu v Besednici

O PROJEKTU
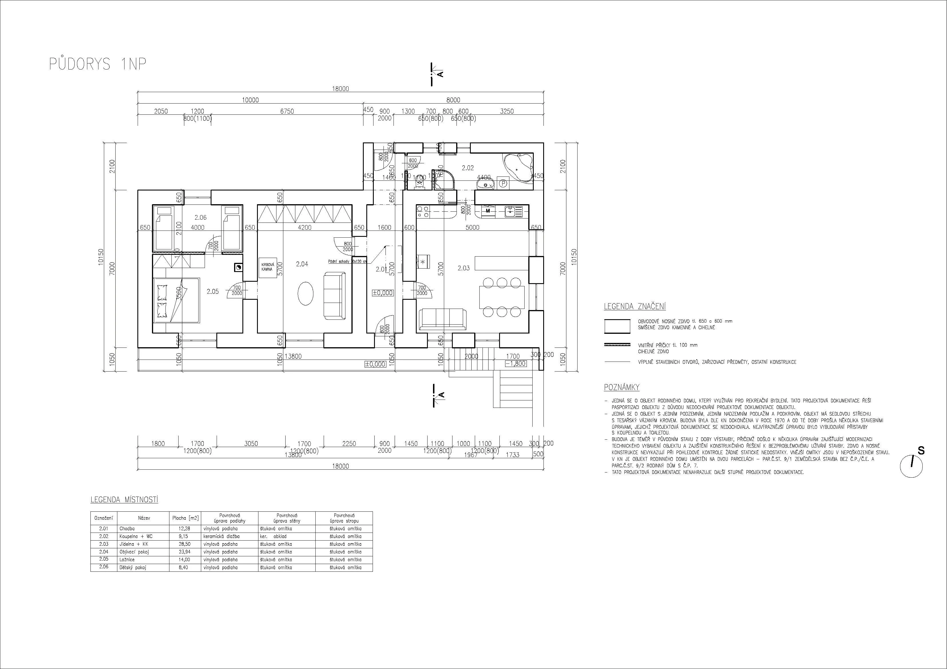
Cílem projektu bylo zpracování pasportu stávajícího rodinného domu, který slouží jako oficiální dokumentace skutečného stavu objektu. Pasport byl vyžadován jako podklad pro další správní kroky a budoucí úpravy stavby.
TYP:
Rodinný dům
SLUŽBY:
Pasport
LOKALITA:
Besednice
Datum:
2025
Projekty
Další projekty
Kontakt
Spojte se s námi.
Kontaktujte nás pro nezávaznou konzultaci vašeho projektu zdarma. Vyslechneme vaše požadavky a nabídneme optimální řešení na míru.











.avif)
.avif)
