PROJEKTY
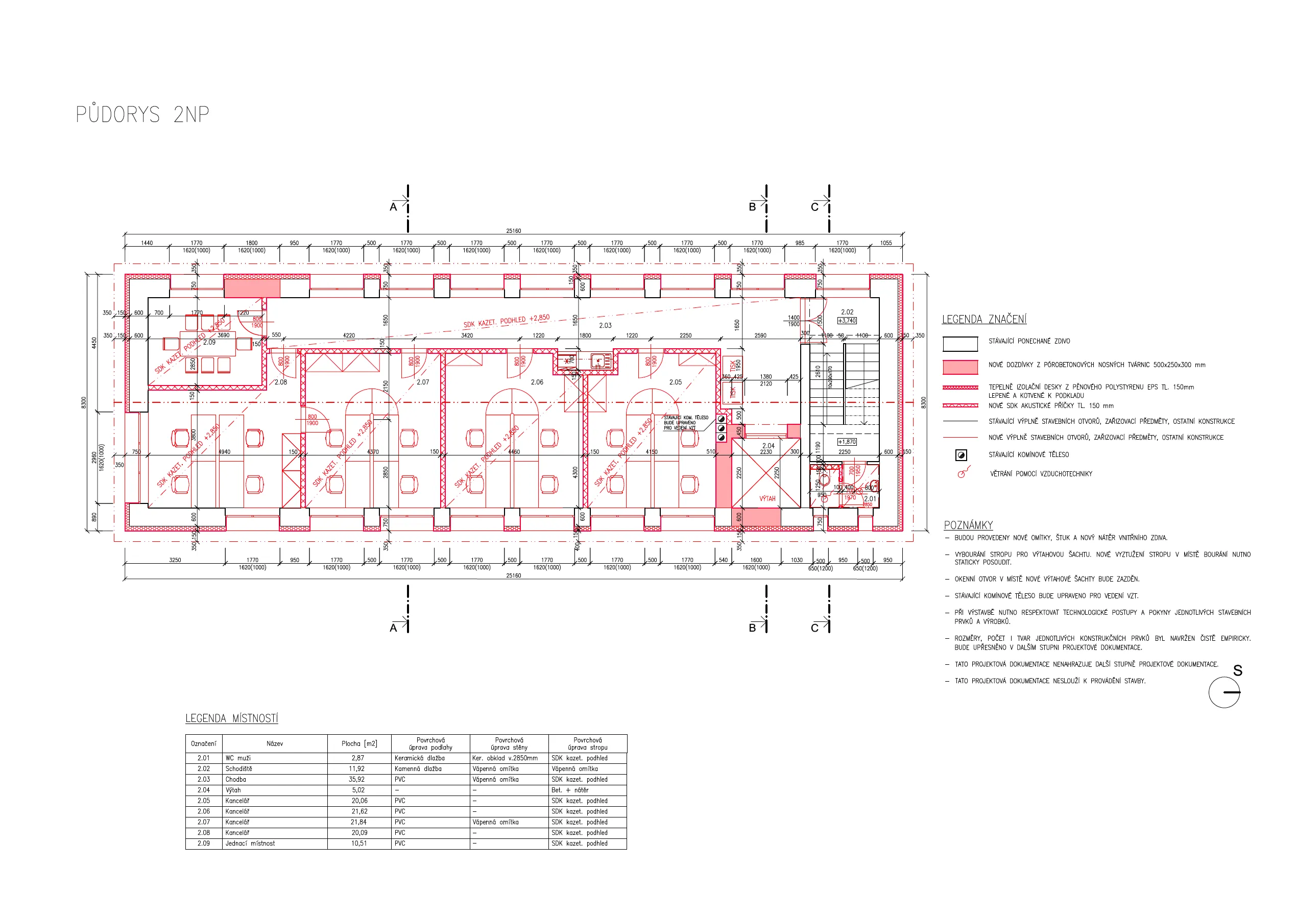
Modernizace provozního objektu České Budějovice
Rekonstrukce objektu zázemí firmy s cílem vytvořit funkční a technicky vyhovující prostory pro každodenní provoz.

O PROJEKTU
Stavební úpravy stávajícího objektu zázemí firmy v Českých Budějovicích zahrnující modernizaci konstrukcí, úpravu dispozice a zlepšení technického stavu objektu.
TYP:
Komerční stavba
SLUŽBY:
Sudie, stavební povolení
LOKALITA:
České Budějovice
Datum:
2022
Projekty
Další projekty
Kontakt
Spojte se s námi.
Kontaktujte nás pro nezávaznou konzultaci vašeho projektu zdarma. Vyslechneme vaše požadavky a nabídneme optimální řešení na míru.











.avif)
.avif)
