PROJEKTY
Rekonstrukce rodinného domu u Českých Budějovic
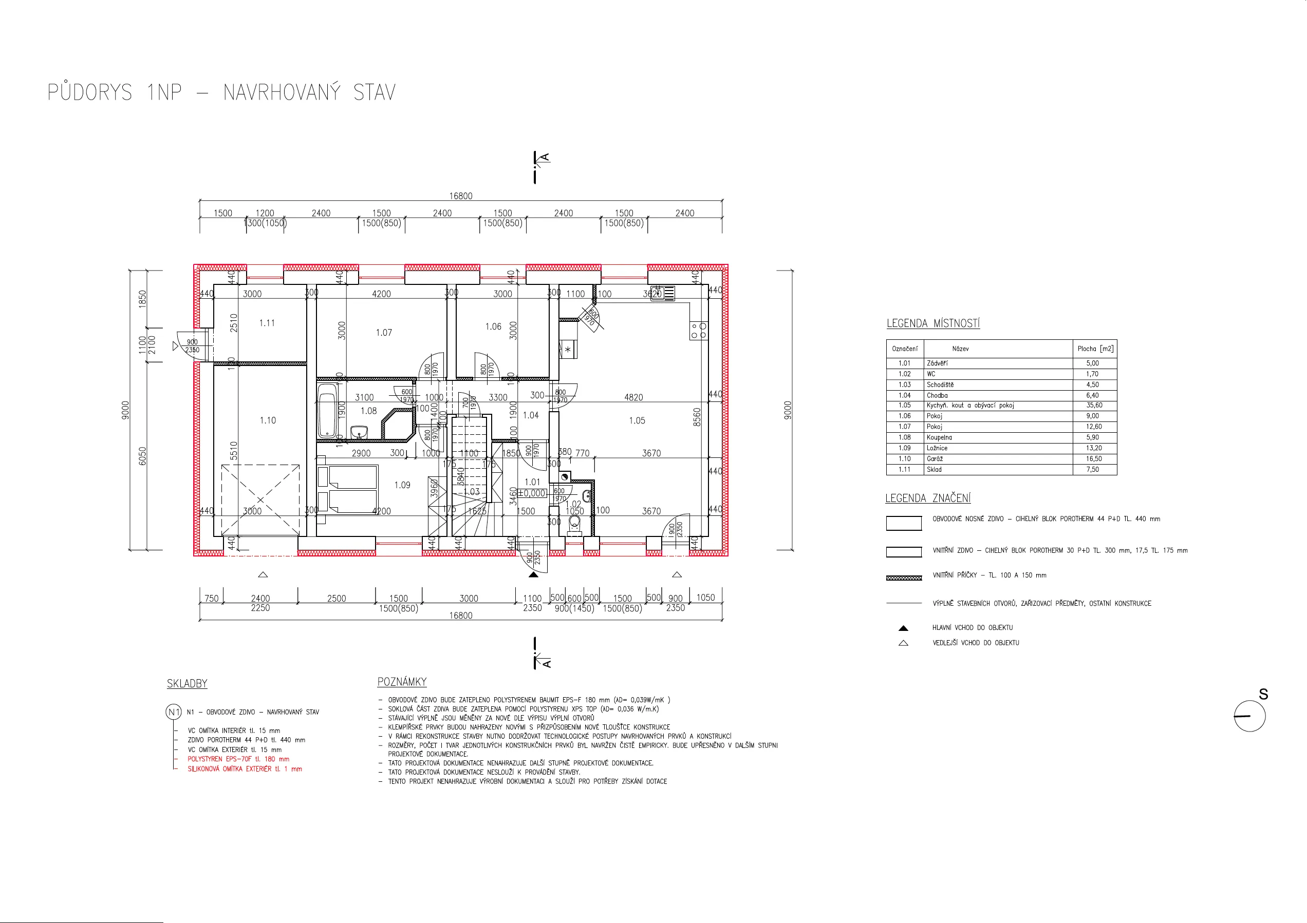
Projekt řeší komplexní rekonstrukci rodinného domu s využitím dotace.

O PROJEKTU
V rámci projektu jsme navrhli jednotlivá opatření pro snížení energetické náročnosti domu. Bylo provedeno kompletní zateplení. Zákazníkovi jsme zajistili dotaci na již provedenou výměnu výplní otvorů s použitím oken s izolačním trojsklem.
TYP:
Rekonstrukce
SLUŽBY:
Projekt, energetický posudek, dotace
LOKALITA:
České Budějovice
Datum:
2025
Projekty
Další projekty
Kontakt
Spojte se s námi.
Kontaktujte nás pro nezávaznou konzultaci vašeho projektu zdarma. Vyslechneme vaše požadavky a nabídneme optimální řešení na míru.






.webp)



.avif)
.avif)
