PROJEKTY
Rodinný dům Závraty
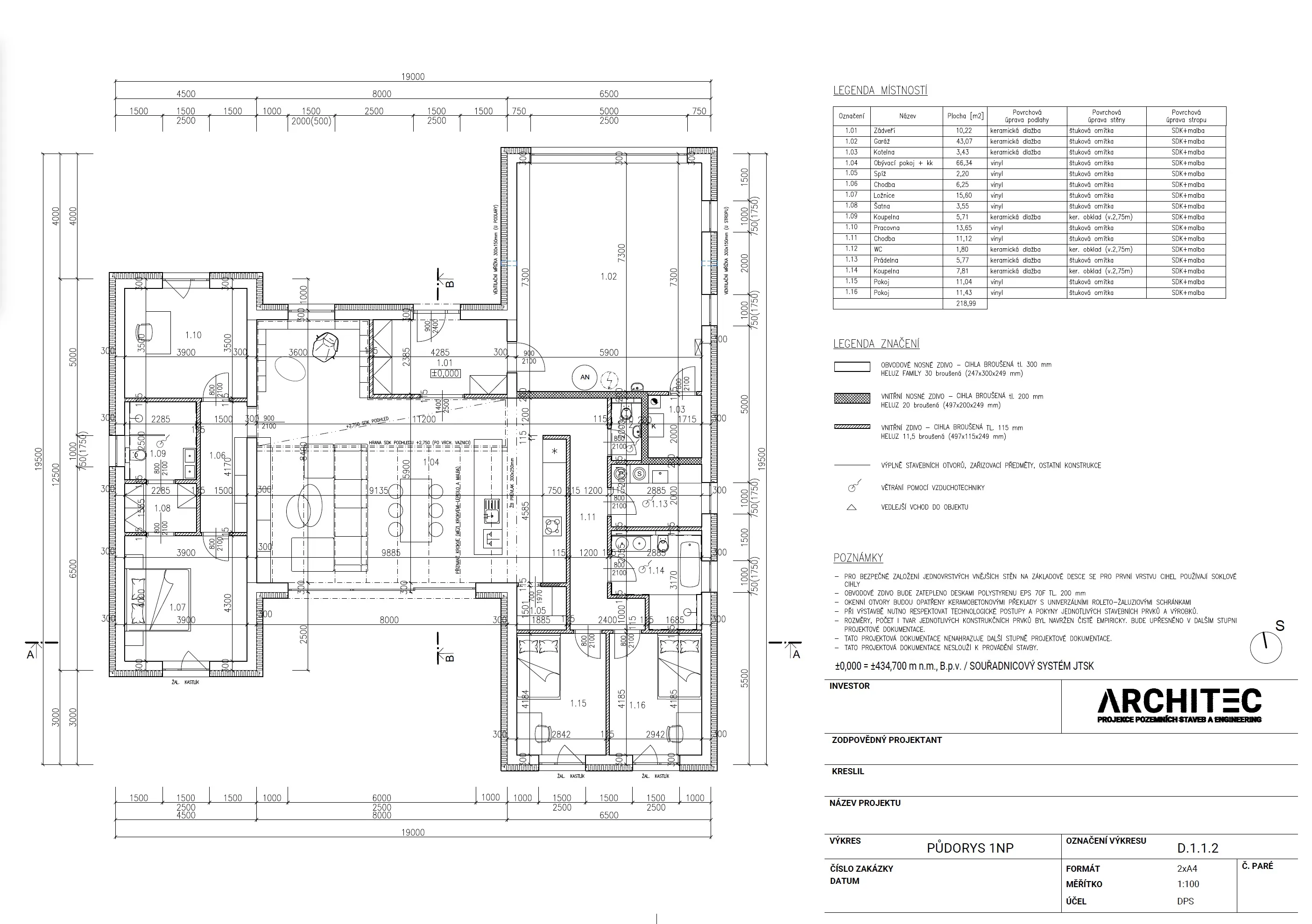
Projekt řeší návrh pasivního rodinného domu v klidném venkovském prostředí s důrazem na funkční dispoziční uspořádání, komfort bydlení a dlouhodobou udržitelnost.

O PROJEKTU
Rodinný dům v klidné venkovské lokalitě obce Závraty s důrazem na soukromí, funkční uspořádání a dlouhodobě udržitelné bydlení. Dům měl přirozeně zapadat do okolní zástavby a krajinného rázu, zároveň však nabídnout moderní standard bydlení.
TYP:
Rodinný dům
SLUŽBY:
Studie, stavební povolení
LOKALITA:
Závraty
Datum:
2025
Projekty
Další projekty
Kontakt
Spojte se s námi.
Kontaktujte nás pro nezávaznou konzultaci vašeho projektu zdarma. Vyslechneme vaše požadavky a nabídneme optimální řešení na míru.











.avif)
.avif)
