PROJEKTY
Rodiny dům Adamov

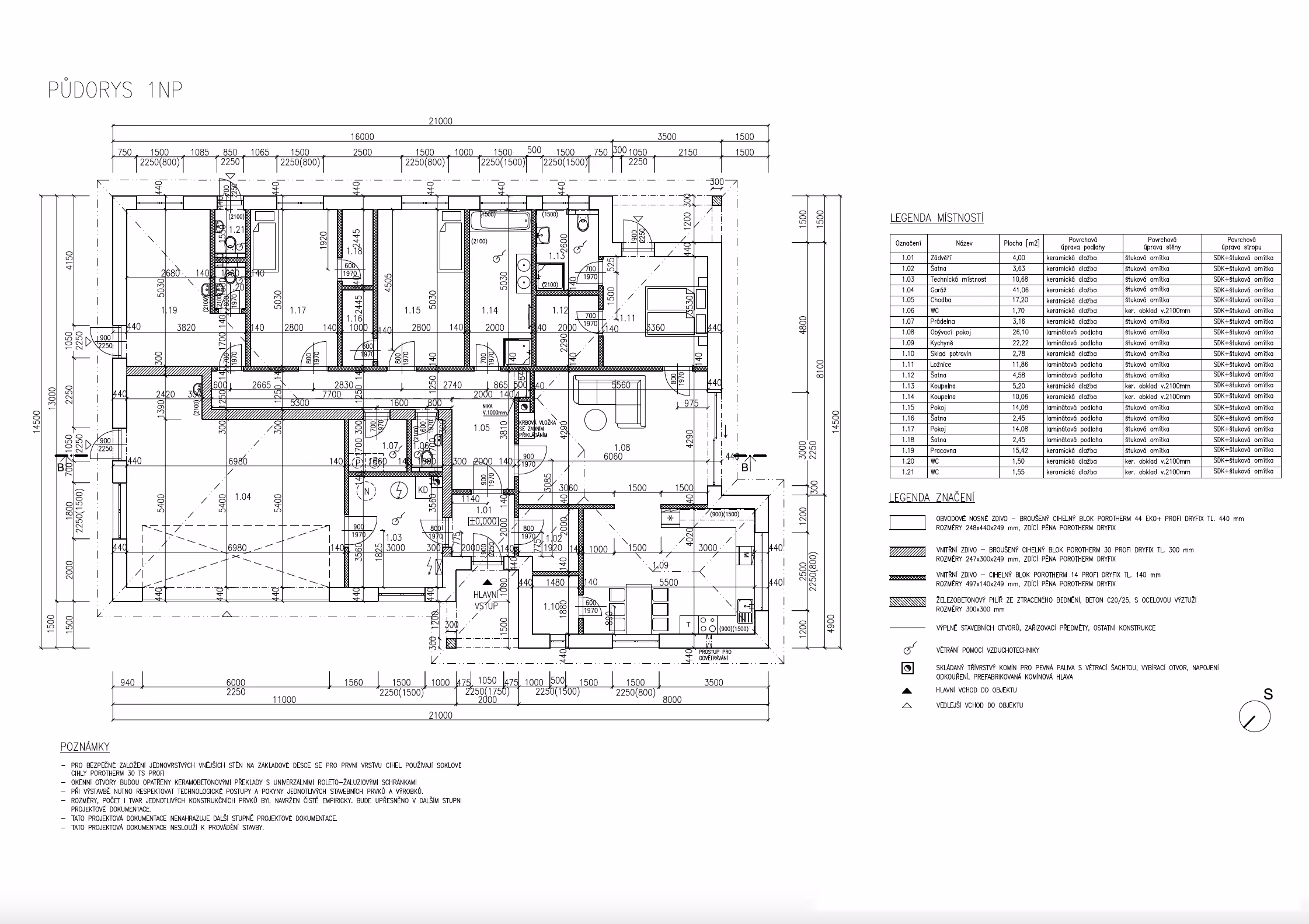
O PROJEKTU
Cílem návrhu bylo vytvořit dům, který bude jednoduchý, funkční a zároveň příjemný k bydlení. Dispozice je navržena tak, aby přirozeně navazovala na exteriér a umožňovala každodenní kontakt se zahradou. Dům jsme koncipovali jako kompaktní objekt s čistou architekturou, která citlivě zapadá do okolní zástavby a současně nabízí moderní komfort. Zvolená konstrukce a technické řešení umožňují úsporný provoz a dlouhodobou udržitelnost.
TYP:
Bydlení
SLUŽBY:
Stavební povolení
LOKALITA:
Adamov
Datum:
2023
Projekty
Další projekty
Kontakt
Spojte se s námi.
Kontaktujte nás pro nezávaznou konzultaci vašeho projektu zdarma. Vyslechneme vaše požadavky a nabídneme optimální řešení na míru.








.avif)
.avif)
